Dom s plochou strechou RD 311
| Zastavaná plocha: | 200,1 m2 |
|---|---|
| Obostavaný priestor: | 780,3 m3 |
| Výška hrebeňa / atiky / od ± 0,000: | +4,3 m |
| Sklon strechy: | 0° |
| Úžitková plocha prízemia: | 167,9 m2 |
| Úžitková plocha poschodia: | 0 m2 |
| Spolu: | 167,9 m2 |
| Obytná plocha: | 71,1 m2 |
| Počet miestností: | 4+KK+2G |
| Obytné miestnosti: | 4 |
| Orientácia vstupu: | SV, SZ, JV |
| Počet osôb: | 4 |
| Cena projektu: | 2 500 € |
| Orientačná cena výstavby: | 210 000 € |
Moderný dom RD 311
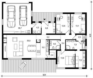
je projekt jednopodlažného rodinného domu s plochou strechou. Koncept domu vychádza z projektu RD 310. Dom má dvojgaráž a štyri izby.
- Do domu sa vstupuje od ulice do zádveria. Od ulice je prístupná aj dvojgaráž, ktorá je cez technickú miestnosť prepojená so zádverím. Zo zádveria sa vstupuje do obytnej časti domu. Na chodbe sa nachádza veľká vstavaná skriňa. Projekčne je dom rozdelený na dve výškové úrovne.
- Zvýšený strop je nad obývacou izbou a kuchyňou, ktoré sú dispozične prepojené, čo umožňuje vytvoriť rôzne tvarovaný SDK podhľad. Prechod z kuchyne do komory je zapracovaný do kuchynskej steny. V projekte je uvažované s dvomi kúpeľňami. Jedna prislúcha k dvom detských izbám. Druhá je prístupná zo šatníka, ktorý je súčasťou spálne rodičov.
- V projekte domu bolo myslené aj na práčovňu, ktorá je na konci chodby. Dom má veľkú prekrytú terasu, na ktorú sa vstupuje z obývacej izby ako aj z kuchyne.
- Podobný projekt domu RD 310