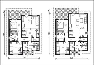
Malý Projekt Bungalovu RD 304
| Zastavaná plocha: | 110,3 m2 |
|---|---|
| Obostavaný priestor: | 433 m3 |
| Výška hrebeňa / atiky / od ± 0,000: | +4,605 m |
| Sklon strechy: | 20° |
| Úžitková plocha prízemia: | 77,1 m2 |
| Úžitková plocha poschodia: | 0 m2 |
| Spolu: | 77,1 m2 |
| Obytná plocha: | 46 m2 |
| Počet miestností: | 3+KK |
| Obytné miestnosti: | 3 |
| Orientácia vstupu: | Z, SV, SZ, JV |
| Počet osôb: | 3-4 |
| Cena projektu: | 1 200 € |
| Orientačná cena výstavby: | 101 000 € |
Bungalov RD 304
z kategórie malých / menších / domov máme v ponuke bungalov RD 304. Dom sa vyznačuje sa jednoduchou, rýchlou výstavbou a energetickou prevádzkou. Je ho možné realizovať aj ako drevodom, alebo montovaný dom. Strop domu je tvorený konštrukciou krovu. Prvky krovu je možné priznať v interiéry. Projekt je vyhotovený v dvoch variantoch. Rozdiel je v šírke domu.