Úzky rodinný dom RD 203
| Zastavaná plocha: | 113,7 m2 |
|---|---|
| Obostavaný priestor: | 634,5 m3 |
| Výška hrebeňa / atiky / od ± 0,000: | +7,1 m |
| Sklon strechy: | 12° |
| Úžitková plocha prízemia: | 83,3 m2 |
| Úžitková plocha poschodia: | 39,1 m2 |
| Spolu: | 122,4 m2 |
| Obytná plocha: | 70,7 m2 |
| Počet miestností: | 4+KK |
| Obytné miestnosti: | 4 |
| Orientácia vstupu: | SZ, SV, JZ, S |
| Počet osôb: | 4 |
| Cena projektu: | 2 500 € |
| Orientačná cena výstavby: | 169 000 € |
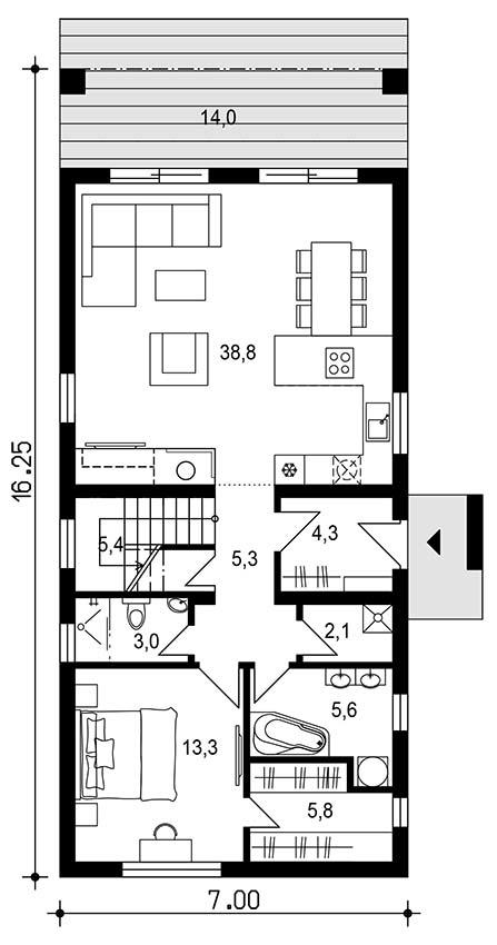
Projekt poschodového domu na úzky pozemok
Rodinný dom je navrhnutý ako poschodový dom pre úzky pozemok s kompaktným obdĺžnikovým pôdorysom. Dispozičné riešenie prízemia je účelné, prehľadné a orientované na maximálne využitie šírky parcely.
Dispozičné riešenie:
- Vstup do domu je situovaný z bočnej strany a vedie zo zádveria do centrálnej chodby, z ktorej sú prístupné všetky miestnosti na prízemí. Chodba rozdeľuje dennú a nočnú časť prízemia. Dominantou podlažia je otvorený denný priestor – obývacia izba prepojená s kuchyňou a jedálňou. Tento priestor je orientovaný do záhrady.
- Vzhľadom na to, že poschodie nie je navrhnuté nad obývacou izbou, je možné riešiť obývaciu izbu so zvýšeným stropom alebo s priznaným krovom, čím sa dosiahne vzdušný a architektonicky výrazný interiér. Kuchyňa je riešená ako otvorená, s dostatočnou pracovnou plochou a nadväznosťou na jedálenský stôl. Dispozícia umožňuje dobré presvetlenie a logické prevádzkové vzťahy.
- V zadnej časti prízemia sa nachádza spálňa so vstupom do šatníka. V blízkosti spálne je situovaná kúpeľňa, pričom WC so sprchou je riešené samostatne. Schodisko na poschodie je umiestnené v strede dispozície.
- Na poschodí domu sa nachádzajú dve izby, kúpeľňa, WC a sklad.
- Celkové riešenie domu je racionálne, úsporné na zastavanú plochu a vhodné do hustej zástavby, pričom ponúka kvalitný denný priestor s potenciálom výrazného architektonického stvárnenia interiéru. Dispozične je projekt domu riešený tak, aby mohol byť z oboch strán umiestnený na minimálny odstup od hranice pozemku. Po menšej úprave môže byť osadený na mierne svahovitý terén. Na fasáde domu môže byť použitá omietka, namiesto plechovej krytiny je možne použiť škridlu. Na vizualizácii sú použité obkladové dosky Fundermax. Iný úzky poschodový dom RD 102